Grand Riverside tọa lạc tại vị trí đắc địa trên mặt tiền đường Bến Vân Đồn, Quận 4 với lợi thế 100% căn hộ có view sông và không bị che khuất tầm nhìn. Quy mô dự án chỉ 1 block duy nhất cao 22 tầng, cung ứng ra thị trường 231 căn hộ và 9 căn Penthouse thiết kế hiện đại, đa dạng diện tích. Nơi đây sở hữu hàng loạt các tiện ích nội khu chất lượng cho cư dân một cuộc sống đủ đầy và thật hạnh phúc.
Giới thiệu dự án Grand Riverside
Toạ lạc bên bờ sông Bến Nghé, Grand Riverside như một châu Âu thu nhỏ giữa lòng Sài Gòn hoa lệ. Với phong cách thiết kế cổ điển nhưng không kém phần tráng lệ, dự án mang đến cho khách hàng những cảm xúc thật sự khác biệt. Trên mảnh đất rộng 2.343m2, chủ đầu tư Hồng Hà đã xây dựng duy nhất 1 toà chung cư cao cấp cao 22 tầng với 240 căn hộ. Có thể thấy được nơi đây chú trọng nhiều đến không gian sống thoải mái, xanh mát đến từng hộ gia đình.
Nằm ngay liền kề trung tâm Quận 1, dự án sở hữu hàng loạt những ưu thế nổi bật như: Khả năng liên kết vùng tốt, nhiều tiện ích chất lượng bao quanh, không gian sống mát lành từ sông, kiến trúc nổi bật… Tất cả đã góp phần không nhỏ giúp cho Grand Riverside có thể tăng giá trị nhanh chóng trong tương lai. Đây cũng chính là dự án bất động sản nổi trội tại khu vực Quận 4 mà khách hàng không nên bỏ lỡ.

Tổng quan dự án Grand Riverside
Quy mô dự án Grand Riverside
|
Tên thương mại |
GRAND RIVERSIDE |
|
Vị trí dự án |
• 278 – 283 Bến Vân Đồn, Quận 4, Thành phố Hồ Chí Minh |
|
Chủ đầu tư |
• Công Ty CP TM & ĐT Hồng Hà |
|
Thiết kế |
|
|
Tổng thầu xây dựng |
• Hoà Bình |
|
Thi công móng cọc |
• Hoà Bình |
|
Tổng diện tích |
• 2,343 m² |
|
Mật độ xây dựng |
• 40% |
|
Loại hình đầu tư |
• Căn hộ chung cư cao cấp, Thương Mại, Dịch Vụ,Văn Phòng, Shophouse, Officetel |
|
Quy mô dự án |
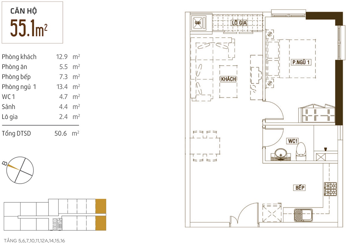
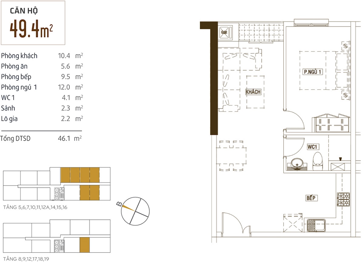
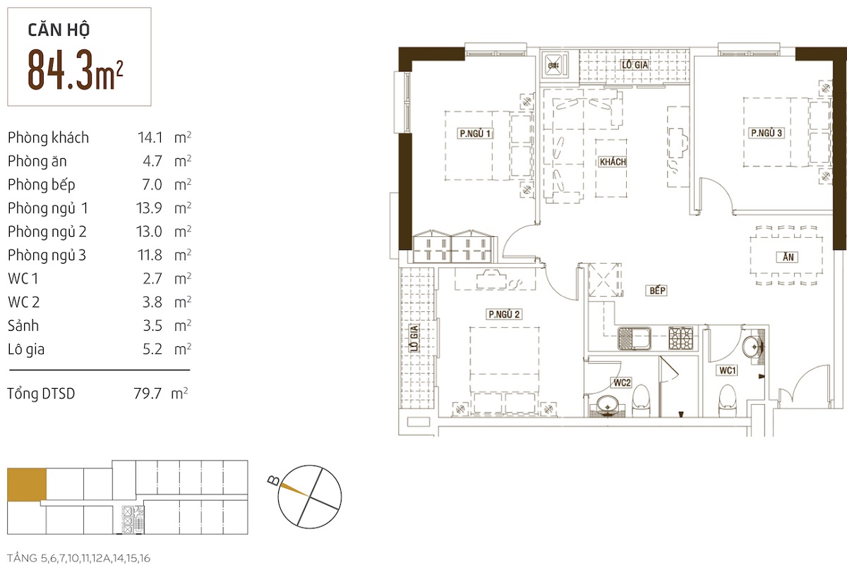
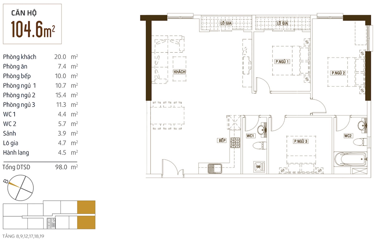
• 2 hầm & 22 Tầng với 240 Căn Hộ • 231 Căn hộ & 09 Penthouse |
|
Tiện ích Grand Riverside |
• Trường mầm non và Trường Tiểu học, Công viên , ,Trung tâm thể dục thể thao (gym, spa, yoga…), Quảng trường, Vườn nướng BBQ, khu ẩm thực, thư viện, phòng sinh hoạt chung, đường chạy bộ, bể bơi… |
|
Khởi công xây dựng |
• Năm 2015 |
|
Dự kiến bàn giao |
• Năm 2017 |
|
Pháp lý |
• Sổ hồng |
|
Hình thức sở hữu |
• Người Việt Nam: Lâu Dài • Người Nước Ngoài: 50 năm theo luật pháp hiện hành |





























