Khu đô thị thương mại dịch vụ J Dragon được xây dựng tại mặt tiền đường Trần Hưng Đạo, trung tâm thị trấn Cần Đước, tỉnh Long An. Với diện tích chỉ 5,6ha dự án mang đến thị trường bất động sản 272 sản phẩm căn hộ bao gồm nhà phố vườn và shophouse. Một không gian sinh sống kết hợp kinh doanh sầm uất hàng đầu khu vực Nam Sài Gòn đang dần hiện hữu để giới đầu tư lựa chọn.
Giới thiệu dự án J Dragon
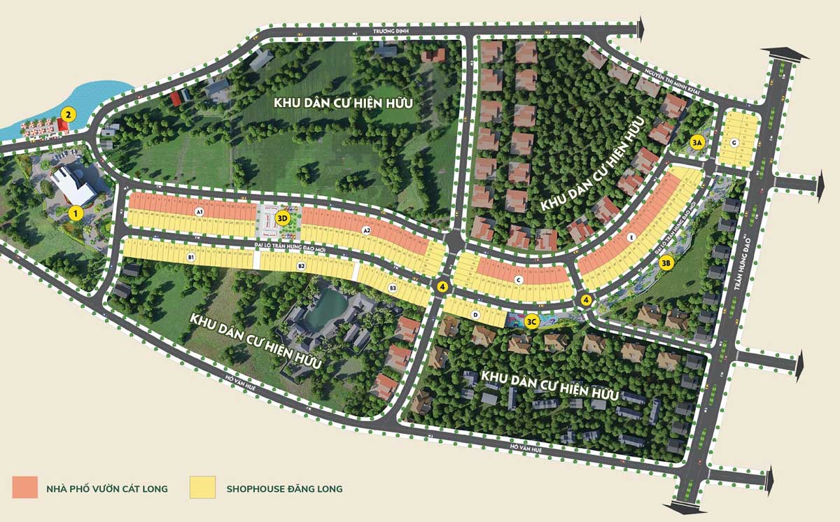
J Dragon là dự án có thiết kế rất đặc biệt với địa thế đất hình chữ “J” khi nhìn từ trên cao. Được quy hoạch trên tổng diện tích đất hơn 5,6ha; dự án phân chia thành 3 khu chức năng riêng biệt bao gồm: Khu phố thương mại với các căn shophouse Đăng Long; khu nhà phố vườn Cát Long và khu tiện ích - công viên Châu Long.
Nét khác biệt của dự án để thu hút các nhà đầu tư chính là sự pha trộn giữa 2 đặc tính “phố” và “chợ”. Không gian sống hiện đại kết hợp với hạ tầng hoàn chỉnh, nhiều tiện ích chất lượng tạo dựng nên một nơi sinh hoạt, đầu tư hấp dẫn hàng đầu.

Tổng quan dự án J Dragon
Quy mô dự án J Dragon
|
Tên thương mại |
Khu đô thị thương mại J-Dragon |
|
Tên pháp lý |
Khu dân cư thương mại thị trấn Cần Đước |
|
Chủ đầu tư |
Công ty Cổ phần Đầu tư Thắng Lợi Riverside |
|
Địa chỉ |
Đường Trần Hưng Đạo, thị trấn Cần Đước, huyện Cần Đước, tỉnh Long An |
|
Quy mô |
56.194 m² |
|
Mật độ xây dựng |
50% |
|
Số lượng sản phẩm |
3 phân khu, 272 sản phẩm (93 nhà phố, 179 shophouse) |
|
Loại hình sản phẩm |
Shophouse, nhà phố, nền shophouse, nền nhà phố |
|
Diện tích |
5m² x 15m², 6m² x 18m² |
|
Hạ tầng |
Hoàn chỉnh, điện âm nước âm, chiếu sáng, vỉa hè và cây xanh, công viên chủ đề |
|
Hình thức sở hữu |
Sở hữu lâu dài, sổ hồng / sổ đỏ từng nền |
|
Thời gian giữ chỗ (booking) |
Ngày 27/6 |
Video giới thiệu dự án

























.jpg?v=)


