Kingston Residence

4.5

223B Hoàng Văn Thụ, Phường 8, Phú Nhuận, Hồ Chí Minh

Trạng thái: Đã hoàn thiện Loại hình: Căn hộ chung cư Giá bán: 3 Đồng/căn Số tầng: 22
Chủ đầu tư: Novaland Giá thuê: 7,5 Triệu Số Block: 1 Số căn: 173

Kingston Residence là dự án nằm trong chuỗi các dự án chung cư cao cấp được tập đoàn Novaland xây dựng tại khu vực quận Phú Nhuận. Quy mô dự án chỉ 1 block duy nhất cao 22 tầng, cung cấp ra thị trường 173 căn hộ hiện đại thiết kế 1-3 phòng ngủ. Vị trí đẹp, số lượng căn hộ hạn chế cho tiềm năng sinh lời cao, đa dạng tiện ích… là những điểm cộng lớn để khách hàng không nên bỏ qua dự án này.

Giới thiệu dự án Kingston Residence

Dự án căn hộ chung cư Kingston Residence Phú Nhuận sở hữu vị trí rất đắc địa khi nằm trên 2 mặt tiền đường là Nguyễn Văn Trỗi và Hoàng Văn Thụ. Đây là những tuyến đường huyết mạch với khả năng liên kết vùng tốt, giúp cư dân tiết kiệm được thời gian di chuyển. Đồng thời còn có thể nhanh chóng tiếp cận đến các tiện ích ngoại khu hấp dẫn khác.

Tuy có diện tích xây dựng dự án khá nhỏ, chỉ 4584m2, thế nhưng dự án Kingston Residence vẫn đảm bảo hài hoà giữa không gian sống và không gian xanh. Ngoài ra nhờ nằm liền kề với công viên Hoàng Văn Thụ lớn nhất thành phố đã giúp cho chất lượng sống của cư dân thêm đảm bảo.

Tổng quan dự án Kingston Residence
Tổng quan dự án Kingston Residence

Quy mô dự án Kingston Residence

Tên thương mại

KINGSTON RESIDENCE

Vị trí dự án

223B Hoàng Văn Thụ, Phường 8, Phú Nhuận, Hồ Chí Minh

Chủ đầu tư

Novaland

Tổng thầu xây dựng

Bình Định

Thi công móng cọc

Bình Định

Quản lý và vận hành

CBRE

Tổng diện tích

4585m²

Mật độ xây dựng

44%

Loại hình đầu tư

Căn hộ

Quy mô dự án

1 block, 173 căn hộ

Tiện ích Kingston Residence Phú Nhuận

Hồ bơi, phòng tập gym, phòng sauna, nhà hàng, sân vườn, khu vui chơi, siêu thị, cảnh quan đẹp, thương mại…

Khởi công xây dựng

2015

Dự kiến bàn giao

04/2018

Pháp lý

Sổ hồng

Hình thức sở hữu

Người Việt Nam: Sổ hồng lâu dài

Người nước ngoài: Sở hữu 50 năm theo luật pháp hiện hành

Chủ đầu tư dự án Kingston Residence là tập đoàn Novaland danh tiếng do ông Bùi Thành Nhơn sáng lập. Ra đời từ năm 1992 với tiền thân là công ty TNHH thương mại Thành Nhơn, doanh nghiệp hoạt động chính trong lĩnh vực sản xuất kinh doanh thú y, thuốc thuỷ hải sản, xây biệt thự cho thuê. Năm 2007 công ty tái cấu trúc và hợp nhất các công ty con thành 2 tập đoàn: Anova Group và Novaland Group.
Hơn 30 năm phát triển trong lĩnh vực bất động sản, Novaland đã trở thành nhà đầu tư và phát triển bất động sản hàng đầu tại Việt Nam. Các sản phẩm của tập đoàn rất đa dạng như: căn hộ, biệt thự, nhà phố, khu văn phòng, dịch vụ thương mại… 
Ngoài Kingston Residence, Novaland còn là chủ đầu tư của nhiều dự án chất lượng khác như: Victoria Village, Lakeview City, Galaxy 9, Garden Gate, Icon 56, The Sun Avenue, The Tresor, Lakevies City, Palace Reéidences…

Novaland là chủ đầu tư dự án
Novaland là chủ đầu tư dự án
 

Địa chỉ Dự án Kingston Residence

Dự án Kingston Residence được xây dựng tại số 223B Hoàng Văn Thụ, phường 8, Quận Phú Nhuận, TP Hồ Chí Minh. Đây là nút giao với số 146 Nguyễn Văn Trỗi - tuyến đường huyết mạch của quận Phú Nhuận đảm bảo về mặt giao thông và không bị tắc đường, kẹt xe cho cư dân trong giờ cao điểm.
Từ dự án cư dân có thể dễ di chuyển đến sân bay Tân Sơn Nhất, đồng thời vị trí dự án cũng là tâm điểm để kết nối với trung tâm hành chính Quận 1 và các Quận trọng điểm lân cận như Quận 1, Quận 3, Tân Bình, Gò vấp, Bình Thạnh…
Vị trí xây dựng dự án Kingston Residence
Vị trí xây dựng dự án Kingston Residence

Liên kết vùng và Hạ tầng xung quanh Kingston Residence

Kingston Residence được bao quanh bởi rất nhiều tuyến giao thông quan trọng của quận Phú Nhuận như: Hồng Hà, Phổ Quang, Nguyễn Kiệm, Nguyễn Văn Trỗi, Hoàng Văn Thụ… Thông qua đó chỉ vài phút di chuyển cư dân có thể dễ dàng tiếp cận đến:
Hệ thống tiện ích ngoại khu bao quanh dự án
Hệ thống tiện ích ngoại khu bao quanh dự án

Trong 5 – 10 phút di chuyển từ Kingston Residence cư dân di chuyển dễ dàng tới các địa điểm
➤  Công viên Gia Định                                    ➤  Sân bay Tân Sơn Nhất
➤  Ga Sài Gòn                                                 ➤  SVĐ quân khu 7
➤  Cao đẳng FPT Polytechnic                         ➤  Bệnh viện 175
Chỉ 15 – 20 phút di chuyển từ Kingston Residence cư dễ dàng tiếp cận tới các địa điểm
➤  Lotte Mart                                                    ➤  BigC
➤  Nhà thờ Đức Bà                                          ➤  Công viên Hoàng Văn Thụ
➤ Chợ Bến Thành

Tất cả các dự án được đầu tư xây dựng bởi tập đoàn Novaland đều được đánh giá cao về chất lượng cũng như tiện ích bên trong. Với Kingston Residence cũng vậy, dự án có được hàng loạt các tiện ích nổi bật như:

  • Hồ bơi chân mây thiết kế tràn bờ ấn tượng
  • Phòng tập Gym hiện đại để rèn luyện thể lực
  • Vườn cây tiện ích với các mảng xanh và nơi thư giãn
  • Nhà hàng và chuỗi cafe hiện đại nhiều món ngon hấp dẫn
  • Spa chăm sóc sức khỏe cho cư dân trải nghiệm
  • Công viên cây xanh
  • Khu vui chơi dành cho trẻ em
  • Siêu thị mua sắm đa dạng ngành hàng phục vụ sinh hoạt hàng ngày
Hệ thống tiện ích có mặt tại Kingston Residence
Hệ thống tiện ích có mặt tại Kingston Residence
Sân vườn xanh mát bên trong dự án
Sân vườn xanh mát bên trong dự án
Tiện ích gym hiện đại
Tiện ích gym hiện đại
Bể bơi chân mây tràn bờ
Bể bơi chân mây tràn bờ 

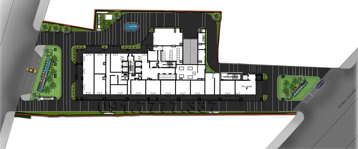
Tổng diện tích xây dựng của dự án Kingston Residence là 4585m2 với mật độ xây dựng khoảng 44%. Quy mô dự án chỉ với 1 block duy nhất cao 22 tầng. Phần diện tích còn lại được sử dụng để tạo cảnh quan và bố trí các tiện ích nội khu.
Điểm ấn tượng thu hút khách hàng của dự án chính là sở hữu tầm view thoáng đãng và rộng rãi. Đa phần các căn hộ sẽ view nhìn trực diện về công viên Hoàng Văn Thụ, sân bay Tân Sơn Nhất hoặc về trung tâm Quận 1.

  • Tầng trệt: Commercial
  • Tầng 2-3-4: bố trí căn hộ Office
  • Tầng 5: Hồ bơi + căn hộ
  • Tầng 6 – 22: Căn hộ hiện đại đa dạng diện tích cũng như thiết loại hình
Mặt bằng tổng thể dự án Kingston Residence
Mặt bằng tổng thể dự án Kingston Residence

Số lượng căn hộ mà dự án Kingston Residence cung cấp ra thị trường là 173 căn hộ hiện đại thiết kế 1 - 3 phòng ngủ theo tiêu chuẩn quốc tế. Đặc biệt 100% căn hộ có tầm view đắt giá cùng hành lang rộng rãi, mát mẻ.
Nhờ vào thiết kế vuông vức mà những căn hộ tại Kingston Residence có khả năng tối ưu không gian sử dụng. Nội thất được trang bị cơ bản và đều đến từ những thương hiệu nổi tiếng trên thế giới.

  • Căn 1 phòng ngủ + 1: diện tích 59,3m2
  • Căn 2 phòng ngủ: diện tích 70,8 – 83,3m2
  • Căn 3 phòng ngủ: diện tích 90,2 – 124m2
Đa dạng các loại hình căn hộ bên trong dự án
Đa dạng các loại hình căn hộ bên trong dự án

Dự án chung cư Phú Nhuận Kingston Residence đang được chủ đầu tư Novaland đưa ra mức giá từ 60 - 72 triệu đồng/m2 đã bao gồm VAT và nội thất cơ bản. Đây là mức giá rất hợp lý so với những dự án khác ở khu vực lân cận, đa dạng diện tích phù hợp với mọi nhu cầu của khách hàng.
GIÁ BÁN DỰ ÁN KINGSTON RESIDENCE CÓ HỢP LÝ KHÔNG???
  • Dự án Kingston Residence toạ lạc ở vị trí đắc địa dễ dàng kết nối vào trung tâm thành phố hay đi sân bay Tân Sơn Nhất.
  • Được xây dựng bởi tập đoàn Novaland danh tiếng trên thị trường, giúp khách hàng yên tâm về tiến độ công trình và thời gian nhận sổ hồng.
  • Hệ thống tiện ích nội khu đa dạng góp phần vào sinh hoạt hàng ngày của cư dân thêm đầy đủ và thuận tiện, không phải đi lại quá xa.
=> Từ những lý do trên, mức giá dự kiến cho các căn hộ tại Kingston Residence là rất hợp lý.
 

Kingston Residence hiện nay đã hoàn thiện toàn bộ các hạng mục và bàn giao nhà cũng như sổ hồng cho cư dân. Về đây sinh sống bạn sẽ được trải nghiệm một chất lượng sống văn minh, hiện đại và thiết thực.

Không gian căn hộ hiện đại, rộng rãi
Không gian căn hộ hiện đại, rộng rãi
Dự án đã được xây dựng xong
Dự án đã được xây dựng xong
Cổng chào vào bên trong dự án
Cổng chào vào bên trong dự án
Thực tế hồ bơi chân mây
Thực tế hồ bơi chân mây
Cổng chào với thiết kế ấn tượng
Cổng chào với thiết kế ấn tượng
Thông tin về dự án Kingston Residence đã được Batdongsanonline.vn cập nhật chi tiết trong bài viết trên đây. Dự án hiện còn rất ít căn hộ trống, nếu cần một nơi an cư lâu dài hoặc một kênh đầu tư sinh lời bền vững thì bạn đừng nên bỏ lỡ

Ước tính khoản vay

Giá trị nhà đất

đ

Khoản tiền cần vay

đ

Thời gian vay (Tháng)

Tháng

Lãi suất vay (%)

%

Loại hình vay

Số tiền bạn vay

0

Vốn hàng tháng

0

Lãi hàng tháng

0

Vốn + Lãi phải trả hàng tháng

0