Top 10+ Mẫu Thiết Kế Phòng Trọ 15m2 Đẹp Nhất 2024

Thúy Linh |

Hiện nay, nhu cầu thuê trọ của sinh viên, người lao động… ở các thành phố lớn ngày càng cao. Việc sống trong một căn phòng trọ đẹp, đầy đủ tiện nghi là điều bất cứ ai khi đi thuê phòng cũng mong muốn. Tuy nhiên, để có một căn phòng trọ đẹp, đáp ứng mong muốn của người thuê không phải là điều dễ dàng. Hãy theo dõi bài viết dưới đây để tham khảo những ý tưởng thiết kế phòng trọ 15m2 đẹp nhé!

Gợi ý mẫu thiết kế phòng trọ 15m2 đẹp hiện đại

Thiết kế phòng trọ 15m2 đẹp có gác

Đa số phòng trọ sẽ có diện tích khá hạn chế nên việc thiết kế thêm gác lửng sẽ là điều cực kỳ cần thiết. Thiết kế phòng trọ 15m2 đẹp có gác không những giúp tăng diện tích sử dụng mà bạn còn có thêm không gian sinh hoạt riêng tư, yên tĩnh.

Mẫu thiết kế phòng trọ 15m2 có gác
Mẫu thiết kế phòng trọ 15m2 có gác

Thiết kế phòng trọ 15m2 đẹp dạng khép kín có cửa sổ

Dạng phòng trọ khép kín được khá nhiều khách thuê lựa chọn, bởi họ muốn có không gian sinh hoạt riêng tư và thoải mái. Tuy nhiên, nên lựa chọn những căn phòng trọ có cửa sổ để được tận hưởng ánh sáng tự nhiên và không khí thoáng mát.

Mẫu thiết kế phòng trọ 15m2 đẹp dạng khép kín có cửa sổ
Mẫu thiết kế phòng trọ 15m2 đẹp dạng khép kín có cửa sổ

Thiết kế phòng trọ 15m2 dạng căn hộ mini

Nếu phòng trọ của bạn được thiết kế theo phong cách hiện đại, tối giản thì sẽ không khác gì những căn hộ hiện nay. Từ một phòng trọ nhỏ 15m2 nhưng nhờ thiết kế thông minh, khoa học đã trở thành một căn phòng dạng căn hộ mini đẹp và có đầy đủ tiện nghi. Mọi nhu cầu về ăn uống, ngủ nghỉ, vui chơi, giải trí, tiếp khách…đều được đáp ứng đầy đủ.

Mẫu thiết kế phòng trọ 15m2 dạng căn hộ mini
Mẫu thiết kế phòng trọ 15m2 dạng căn hộ mini

Thiết kế phòng trọ 15m2 dành cho nữ

Đây là mẫu thiết kế phù hợp với những cô nàng bánh bèo nữ tính bởi căn phòng sẽ được sơn tông màu pastel và kết hợp với những nội thất đơn giản như: bàn ghế học tập, kệ sách , gối tựa, giường ngủ…Tuy chỉ có diện tích 15m2 nhưng có đủ tiện nghi, đáp ứng mọi nhu cầu của người sử dụng.

Mẫu thiết kế phòng trọ 15m2 dành cho nữ
Mẫu thiết kế phòng trọ 15m2 dành cho nữ

Thiết kế phòng trọ 15m2 đẹp không gác

Thiết kế phòng trọ 15m2 đẹp không gác sẽ thích hợp với những người không thích leo lên leo xuống cầu thang. Họ cảm thấy thoải mái và thuận tiện hơn khi sinh hoạt trên một mặt sàn. Vì không có gác lửng nên việc bố trí phòng ăn, phòng ngủ, phòng vệ sinh…cần khoa học và hợp lý. Ưu điểm của thiết kế này so với thiết kế có gác lửng là ít tốn các khoản chi phí về đèn, điện…

Mẫu thiết kế phòng trọ 15m2 đẹp không gác
Mẫu thiết kế phòng trọ 15m2 đẹp không gác

Thiết kế phòng trọ 15m2 cho người ngăn nắp

Với những ai thích sự gọn gàng, sạch sẽ thì đây là mẫu thiết kế phòng trọ phù hợp. Việc sử dụng những tông màu sáng sẽ giúp bạn cảm thấy căn phòng có thêm nhiều diện tích. Nên sử dụng các loại bàn, ghế, tủ, kệ có bánh xe để việc quét dọn trở nên dễ dàng hơn. 

Mẫu thiết kế phòng trọ 15m2 cho người ngăn nắp
Mẫu thiết kế phòng trọ 15m2 cho người ngăn nắp

Thiết kế phòng trọ 15m2 cho vợ chồng mới cưới

Đây là mẫu phòng trọ 15m2 được thiết kế với không gian sinh hoạt hiện đại và đầy đủ tiện nghi. Phù hợp với những cặp vợ chồng mới cưới chưa có thu nhập ổn định nhưng mong muốn sống trong một không gian thoải mái cho cả hai.

Mẫu thiết kế phòng trọ 15m2 cho vợ chồng mới cưới
Mẫu thiết kế phòng trọ 15m2 cho vợ chồng mới cưới

Thiết kế phòng trọ 15m2 đẹp dạng hình ống

Phòng trọ dạng ống tức là phòng được thiết kế theo chiều dọc. Thông thường những không gian như này thường được bố trí thêm gác lửng để tăng diện tích sử dụng. 

Mẫu thiết kế phòng trọ 15m2 dạng hình ống
Mẫu thiết kế phòng trọ 15m2 dạng hình ống

Thiết kế phòng 15m2 dạng nằm ngang

Hiện nay, mẫu phòng trọ 15m2 dạng nằm ngang khá phổ biến và có bố cục rất hợp lý. Khách thuê phòng trọ rất thích mẫu thiết kế phòng trọ nằm ngang có thêm gác lửng. Bởi việc đó sẽ giúp căn phòng tăng thêm diện tích sử dụng và có sự riêng tư.

Mẫu thiết kế phòng trọ 15m2 dạng nằm ngang
Mẫu thiết kế phòng trọ 15m2 dạng nằm ngang

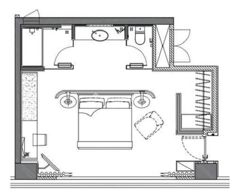
Thiết kế phòng trọ 15m2 theo mô hình phòng khách sạn

Đây là một trong những mẫu thiết kế phòng trọ 15m2 đẹp và cao cấp nhất. Mẫu thiết kế này được xây dựng  như những căn phòng khách sạn mini đầy đủ tiện nghi.  

Mẫu thiết kế phòng trọ 15m2 theo mô hình phòng khách sạn
Mẫu thiết kế phòng trọ 15m2 theo mô hình phòng khách sạn

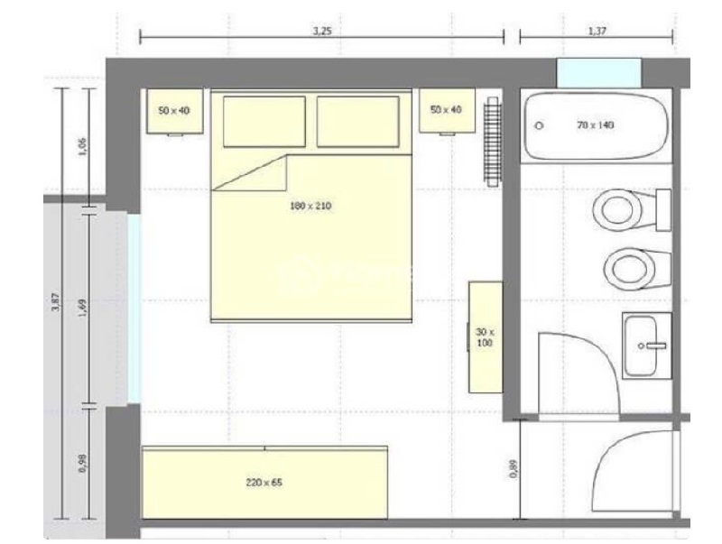
Bản vẽ thiết kế phòng trọ 15m2

Có rất nhiều cách để thiết kế phòng trọ 15m2, dưới đây là một số bản vẽ thiết kế phòng trọ 15m2 vừa đẹp vừa thông dụng.

Bản vẽ thiết kế phòng trọ 15m2 đẹp và hiện đại
Bản vẽ thiết kế phòng trọ 15m2 đẹp và hiện đại

 

Bản vẽ thiết kế phòng trọ 15m2 phổ biến hiện nay
Bản vẽ thiết kế phòng trọ 15m2 phổ biến hiện nay

 

Bản vẽ thiết kế phòng trọ 15m2 được ưa thích hiện nay
Bản vẽ thiết kế phòng trọ 15m2 được ưa thích hiện nay

Chia sẻ kinh nghiệm thiết kế phòng trọ 15m2 tiết kiệm

Để thiết kế phòng trọ 15m2 đẹp mà muốn tiết kiệm chi phí thì hãy tham khảo những kinh nghiệm sau đây:

  • Xác định đối tượng thuê trọ:

Tùy vào khách hàng mục tiêu là sinh viên, nhân viên văn phòng hay công nhân…mà bạn chọn phong cách thiết kế phòng trọ cho phù hợp. Nếu là sinh viên thì ưu tiên sự thuận tiện, đơn giản, còn nhân viên văn phòng thì cần căn phòng có thẩm mỹ, riêng tư. Yêu cầu về phòng trọ của công nhân có phần đơn giản hơn.

  • Xác định chi phí:

Xác định chi phí thực hiện là một trong những việc quan trọng nhất. Bạn cần thống kê, tính toán kỹ càng để hạn chế tối đa các chi phí phát sinh. Việc này còn giúp bạn lựa chọn được những phong cách thiết kế phù hợp với khả năng tài chính hiện có.

  • Chọn phong cách thiết kế phù hợp:

Bạn nên tham khảo nhiều phong cách thiết kế khác nhau để chọn được phong cách phù hợp. Một số nguồn thông tin gợi ý nhiều ý tưởng hay có thể tham khảo như: Pinterest, Facebook, Instagram…

Chia sẻ kinh nghiệm thiết kế phòng trọ 15m2 tiết kiệm
Chia sẻ kinh nghiệm thiết kế phòng trọ 15m2 tiết kiệm

Cách trang trí phòng trọ 15m2 ấn tượng

Tạo vách ngăn

Khi chọn những vách ngăn bằng kệ tủ lớn hay vách ngăn thạch cao…sẽ khiến căn phòng trọ trở nên chật chội. Gợi ý cho bạn nên chọn những vách ngăn bằng tấm rèm mỏng, tủ kệ trang trí hay kính trong suốt…Điều đó không những giúp tách biệt không gian sử dụng hiệu quả mà còn mang lại cảm giác rộng rãi, thoải mái. 

Chọn màu sơn phòng

Nên chọn những màu sơn phòng có tông sáng như màu trắng hoặc màu be…sẽ giúp không gian trở nên mới mẻ, tươi sáng và thông thoáng.

Tận dụng cửa sổ

Khi phòng trọ của bạn có cửa sổ hãy tận dụng nó và làm cửa sổ bằng kính để gia tăng nhiều ánh sáng tự nhiên. Điều đó sẽ giúp căn phòng trọ 15m2 nhỏ xinh thêm phần thoáng đãng và mát mẻ. Ngoài ra, bạn có thể bố trí khu vực bếp ở đó để hạn chế căn phòng trọ ám mùi thức ăn.

Chọn, bố trí đồ nội thất thông minh

Nếu lựa chọn những đồ nội thất thông minh, nhiều công năng để vừa tiết kiệm diện tích vừa dễ dọn dẹp. Ngoài ra, bạn nên sắm giường có gầm cao để có thể biến gầm giường thành nơi cất đồ đạc thay cho chiếc tủ lớn chiếm diện tích. 

Sử dụng các khung tranh hoặc ảnh treo tường

Khung tranh hoặc khung ảnh là lựa chọn thích hợp để trang trí, bạn có thể chọn những khung hình với nhiều kiểu dáng, kích thước để treo lên tường. Điều này, góp phần che những khuyết điểm trên tường phòng trọ mà bạn không thích. 

Dùng các tấm rèm treo cửa

Nếu phòng trọ bạn có cửa sổ thì bạn có thể sử dụng rèm treo cửa để che nắng. Đồng thời, khi sử dụng tấm rèm đơn giản với họa tiết độc đáo sẽ giúp phòng trọ gia tăng tính thẩm mỹ.

Trang trí phòng bằng các chậu cây xanh

Bất kể bạn thiết kế phòng trọ 15m2 theo phong cách nào thì việc đặt các chậu cây xanh sẽ giúp không gian nổi bật hơn. Ngoài ra, cây xanh còn giúp thanh lọc không khí trong phòng.

Sử dụng giấy dán tường

Dùng giấy dán tường để trang trí phòng trọ là cách vừa đơn giản và vừa tiết kiệm chi phí. Nên chọn những mẫu giấy dán tường có màu sắc tươi sáng và họa tiết đơn giản để trang trí phòng trọ đẹp hơn.

Cách trang trí phòng trọ 15m2 ấn tượng
Cách trang trí phòng trọ 15m2 ấn tượng

Bài viết trên đây là những chia sẻ về kinh nghiệm thiết kế phòng trọ 15m2 đẹp và gợi ý một số mẫu phòng trọ 15m2 được ưa chuộng hiện nay. Mong rằng, bài viết trên đã mang lại cho bạn nhiều thông tin hữu ích. Hãy theo dõi website batdongsanonline.vn để cập nhật thêm nhiều thông tin về kiến thức phòng trọ, ngoài ra khách hàng có thể tìm thuê phòng trọ giá rẻ tại đây:

Xem thêm các bài viết liên quan:

 

* Thông tin bài viết chỉ mang tính tổng hợp và tham khảo tại thời điểm chia sẻ, không phải ý kiến chuyên gia. Mặc dù chúng tôi đã cố gắng đảm bảo rằng thông tin trong bài viết này là chính xác và đáng tin cậy khi được đăng tải, nhưng chúng tôi muốn nhấn mạnh rằng không nên dựa vào thông tin trong bài viết này để đưa ra quyết định về tài chính, đầu tư, bất động sản hoặc vấn đề pháp lý. Chúng tôi không chịu trách nhiệm cho bất kỳ quyết định nào dựa trên thông tin trong bài viết này.

Bất động sản nổi bật