Kinh Nghiệm Xây Nhà Cấp 4 Khoảng 150 Triệu Mới Nhất 2024

Thúy Linh |

Nhà cấp 4 với kiểu dáng hiện đại không quá cầu kỳ nhưng vẫn đầy đủ công năng hiện đang là sự lựa chọn của rất nhiều gia đình. Xây nhà cấp 4 khoảng 150 triệu bạn nên tham khảo chi phí và các mẫu nhà đã thi công để có sự tính toán phù hợp nhất. Cùng Bất động sản Online tìm hiểu các mẫu thiết kế về cách lên kế hoạch dự toán kinh phí cho nhà cấp 4 chỉ 150 triệu nhé!

Xây nhà cấp 4 khoảng 150 triệu có đầy đủ công năng không?

Nhà cấp 4 là công trình xây dựng có mái và tường vách dùng để ở hoặc sử dụng vào một việc nào đó, tiêu chí phân cấp nhà cấp 4 được quy định là có tổng diện tích sàn xây dựng nhỏ hơn 1000m2, số tầng cao không quá 1 tầng, có chiều cao nhỏ hơn hoặc bằng 6m. Ngày nay, xây nhà cấp 4 theo phong cách hiện đại, thông minh không những tạo không gian sống thông thoáng, đảm bảo được tính thẩm mỹ cũng như công năng sử dụng cao nhất rất phổ biến. 

Xu hướng xây nhà cấp 4 khoảng 150 triệu được nhiều gia đình chọn lựa
Xu hướng xây nhà cấp 4 khoảng 150 triệu được nhiều gia đình chọn lựa

 

Với nguồn tài chính hạn hẹp, việc lựa chọn được một mẫu nhà đảm bảo tính thẩm mỹ, công năng sử dụng là một điều không hề đơn giản. Vậy nhà cấp 4 khoảng 150 triệu bạn có thể xây được ngôi nhà với diện tích là bao nhiêu? 

Với mẫu nhà cấp 4 giá 150 triệu, bạn có thể sở hữu một ngôi nhà với 2 phòng ngủ, 1 phòng khách, 1 nhà vệ sinh khoảng 100m2 và diện tích xây dựng nhà ~80m2.

Đặc điểm:

✔ Chi phí hợp lý: Hầu hết các mẫu nhà cấp 4 đều có mức chi phí xây dựng thấp, phù hợp với mức kinh tế của các gia đình Việt. Thông thường chi phí nằm ở mức từ 150 – 600 triệu đồng.

✔ Kết cấu, kiến trúc đơn giản: Yêu cầu về yếu tố kiến trúc của nhà cấp 4 không quá cầu kỳ, tuy nhiên vẫn đảm bảo được kết cấu ổn định, vững chắc và cả tính thẩm mỹ cho chủ nhà. Bên cạnh đó, nhờ cấu trúc đơn giản, việc cải tạo nhà cấp 4 cũng trở nên dễ hơn và chi phí thấp hơn.

✔ Không đòi hỏi kỹ thuật xây dựng cao, phức tạp: đảm bảo được các tiêu chuẩn cơ bản như sự an toàn, độ bền sử dụng nhà lên đến gần 30 năm cho người sử dụng.

✔ Thời gian hoàn thành công trình nhanh: Thông thường, thời gian hoàn thành công trình là khoảng 4 tháng trở lại, tùy thuộc vào các yếu tố khác nhau mà thời gian có thể ngắn hơn hoặc kéo dài hơn.

✔ Thiết kế đa dạng: Hiện nay, có rất nhiều thiết kế nhà cấp 4 đa dạng, mang nhiều phong cách khác nhau, đến từ kiểu kiến trúc mang nét truyền thống Châu Á hay sự sang trọng hiện đại trong phong cách Châu Âu hay các kiến trúc cải biến,…

Gợi ý các khoản chi phí xây nhà cấp 4 khoảng 150 triệu

Nguyên vật liệu cần tính toán, dự trù           

Chi phí gì có thể cắt giảm được?

Cần chuẩn bị thêm một khoản tiền dự phòng để tránh tình trạng không xoay xở kịp, thiếu trước hụt sau

-  Sắt làm xà gồ 4 – 8 15mm và sắt phi 14, phi 6 (đơn vị tính: cây).                        

-  Đinh 5 và thép buộc để đóng cốp pha và buộc niềng móng (đơn vị tính: cân).

- Xi măng (đơn vị tính: bao).

-  Gạch (đơn vị tính: viên) – với chi phí xây dựng là 150 triệu cho tổng thể thì chọn gạch loại 2 là hợp lý.

- Đá 1 x 2 (đơn vị tính: tấn)

- Đá chẻ

- Ống nước Phi 90

- Công thợ (tính theo ngày công hay khoán diện tích)

- Bi hầm cầu

- Gạch men + bồn cầu + bồn rửa chén

- Bột chà ron và phụ kiện bắt nước máy

- Chổi quét vôi và keo chống thấm bên ngoài

- Cát xây và cát tô

- Đá ốp bếp

- Công trét bột

- Sơn (bạn tự lăn được)

- Phong bì để ngôi nhà của bạn thành hình

- Cửa (cửa chính, cửa sổ, cửa các phòng, cửa WC)

- La phong thạch cao

- Tôn màu 3kg (đơn vị tính: tấm)

- Điện

- Xe chở sắt

- Coi thầy, ăn nhậu cho thợ, đồ cúng làm lễ

- Một số khoản chi lặt vặt và phát sinh như mua thêm đồ, chi phí tăng…                                                                                                                                                                                                                                                  

-  Tự lăn sơn – tiết kiệm tiền công.

-  Tự bắt điện.

-  Cửa: dùng cửa sắt kính hoặc nhôm kính (chắc chắn rẻ và bền hơn cửa gỗ).

- Không mua sắm những nội thất không cần thiết như: máy giặt, tủ lạnh, điều hòa…

- Nội thất mua sắm nên tìm hiểu những đồ dùng đa năng. Hiện nay có rất nhiều đồ dùng được tích hợp nhiều tính năng như bàn gắn tường, kệ tivi tích hợp bàn uống trà ở phòng khách… - vừa giúp tiết kiệm không gian, vừa giúp tiết kiệm chi phí (không phải mua nhiều đồ khác nhau chỉ với 1 tính năng).

- Diện tích nhà hẹp, tích hợp thêm gác lửng.

-  Xây dựng 1 nhà vệ sinh chung giúp tiết kiệm diện tích và chi phí.

-  Nếu diện tích đất quá rộng có thể tận dụng phần đất trước nhà làm sân chơi cho trẻ nhỏ, phía sau trồng rau…

 

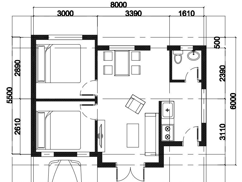
Gợi ý mặt bằng nhà cấp 4 khoảng 150 triệu

Layout thiết kế nhà cấp 4 khoảng 150 triệu
Layout thiết kế nhà cấp 4 khoảng 150 triệu

 

Tổng hợp mẫu thiết kế xây nhà cấp 4 khoảng 150 triệu mới nhất năm 2024

Năm 2023, có rất nhiều mẫu nhà cấp 4 đẹp với tổng chi phí thi công khoảng 150 triệu. Dưới đây là một số mẫu mà Bất động sản Online tổng hợp được, bạn có thể tham khảo:

Mẫu thiết kế nhà cấp 4 mái bằng khoảng 150 triệu
Mẫu thiết kế nhà cấp 4 mái bằng khoảng 150 triệu

 

Nhà cấp 4 mái lệch độc đáo
Nhà cấp 4 mái lệch độc đáo

 

Mẫu nhà cấp 4 khoảng 150 triệu, diện tích 80m2
Mẫu nhà cấp 4 khoảng 150 triệu, diện tích 80m2

 

Mẫu nhà cấp 4 mái thái, sân thoáng mát
Mẫu nhà cấp 4 mái thái, sân thoáng mát

 

Nhà cấp 4 có sân sinh hoạt thoải mái
Nhà cấp 4 có sân sinh hoạt thoải mái

 

Mẫu nhà cấp 4 có gác lửng, sân vườn
Mẫu nhà cấp 4 có gác lửng, sân vườn

 

Xây nhà cấp 4 khoảng 150 triệu cần lưu ý điều gì?

  • Chọn vị trí đất xây dựng nhà: Nên chọn vị trí đất cao, bằng phẳng, có kết cấu địa chất ổn định đồng thời kiến trúc nhà lựa chọn là nhà cấp 4 thì chỉ cần thiết kế móng đơn giản vừa tiết kiệm chi phí, vừa đảm bảo chất lượng công trình.

  • Khảo sát công trình trước khi xây dựng: Việc khảo sát thực tế công trình trước khi thiết kế, thi công xây dựng nhà cấp 4 sẽ giúp bạn lên phương án thiết kế và thi công vừa hợp lý, tiết kiệm và đảm bảo chất lượng công trình.

  • Chọn thiết kế nhà phù hợp: Hãy chọn những mẫu thiết kế nhà đơn giản, phù hợp với diện tích, khổ đất và nên tập trung vào các không gian chức năng trong nhà để phục vụ nhu cầu sinh hoạt của các thành viên.

  • Lên kinh phí xây dựng một cách tương đối để dự toán và chuẩn bị một cách tốt nhất khi bắt tay vào việc xây dựng. Bạn có thể tham khảo bạn bè, những người đã từng xây nhà hoặc các chủ thầu để tìm hiểu kỹ hơn về vấn đề này. Mọi lời khuyên chỉ mang tính chất tham khảo.


Nhà cấp 4 là một trong những mẫu nhà đang được nhiều khách hàng yêu thích hiện nay. Chi phí xây dựng nhà cấp 4 hiện nay cũng rất đa dạng tùy theo mẫu kiến trúc cùng công năng mà khách hàng lựa chọn. Tuy nhiên, nếu bạn muốn xây nhà cấp 4 khoảng 150 triệu thì có thể tham khảo cách thiết kế, dự toán kinh phí theo bài viết nhé.

* Thông tin bài viết chỉ mang tính tổng hợp và tham khảo tại thời điểm chia sẻ, không phải ý kiến chuyên gia. Mặc dù chúng tôi đã cố gắng đảm bảo rằng thông tin trong bài viết này là chính xác và đáng tin cậy khi được đăng tải, nhưng chúng tôi muốn nhấn mạnh rằng không nên dựa vào thông tin trong bài viết này để đưa ra quyết định về tài chính, đầu tư, bất động sản hoặc vấn đề pháp lý. Chúng tôi không chịu trách nhiệm cho bất kỳ quyết định nào dựa trên thông tin trong bài viết này.

Bất động sản nổi bật